PrimeLifeTerrace岡山 1号地モデルハウス
お問い合わせ
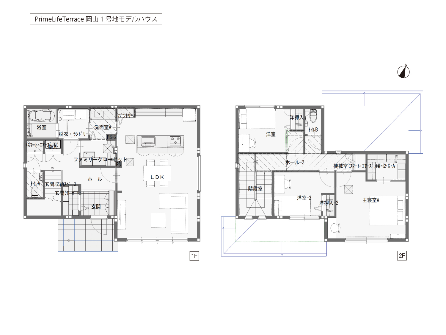
家中どこにいても快適に過ごせる全館空調「Smart Airs PLUS」や、家計にも環境にもやさしい太陽光発電システムを採用した住まいです。
さらに、リビングを横断しないコンパクトな家事ラク動線で、日々の暮らしをよりスムーズにしてくれます。
実際の暮らしをイメージしやすいリアルサイズのモデルハウスとなっておりますので、ぜひマイホームづくりの参考にご見学くださいませ!
- 住所
- 〒700-0071
岡山市北区谷万成2丁目81番7
- アクセス



