| 号地 | 土地面積 | 販売価格 |
|---|---|---|
| 2 | 180.81㎡(54.69坪) | 46,870,000円 |
| 地目 | 宅地 |
|---|---|
| 都市計画 | 市街化区域 |
| 用途地域 | 第1種住居専用地域 |
| 建ぺい率 | 60% |
| 容積率 | 200% |
| 道路幅員 | 市道 北側、東側:幅員約6.0m |
| 設備 | ●水道/市営水道 ●排水/公共下水 ●雨水/宅地桝●全館空調スマートエアーズ ●太陽光パネル(3.975kw) ●エコキュート ●IHヒーター●リモコンキー ●24時間換気システム ●BEV・PHEV専用コンセント ●浴室乾燥機 |
| 販売戸数 | 1戸 |
| 販売価格 | 4687万円(税込) |
| 土地面積 | 180.81㎡(54.69坪) |
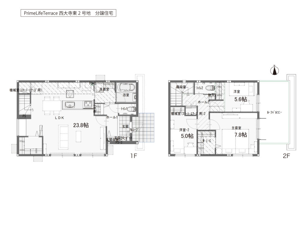
| 建物面積 |
1F:55.98㎡ 2F:44.43㎡ |
| 延床面積 | 100.41㎡(29.37坪) |
| 建物完成日 | 令和8年3月頃完成予定 |
| 建築確認番号 | 第ERI-25033351号(令和7年10月27日付) |
| 取引態様 | 売主 |
| 備考 | 登記費用別途要。 |
| 情報更新日 | 2026年03月25日※先着順申込につき、ご希望の物件が成約済となる場合がございます。 |
| 広告主 | トヨタホーム岡山株式会社 〒701-0144 岡山県岡山市北区久米161 TEL:086-941-8822 免許番号:国土交通大臣(2)第9718号 |
※表示の徒歩分数は地図上で計測した概算距離を1分80mで算出した所要時間です。
※次回情報更新日/2026年04月08日