• カタログ請求
  • お問い合わせ
  • 0120-1194-91

あけぼの町2号地

【2026.3月完成】
コンパクトな間取りで家族を近くに感じる住まい

あけぼの町2号地
・家中どこにいても心地良い全館空調「Smart Airs PLUS」
・家計にも環境にもやさしい太陽光発電システム
2号地/3LDK
販売価格
(税込)
4688万円
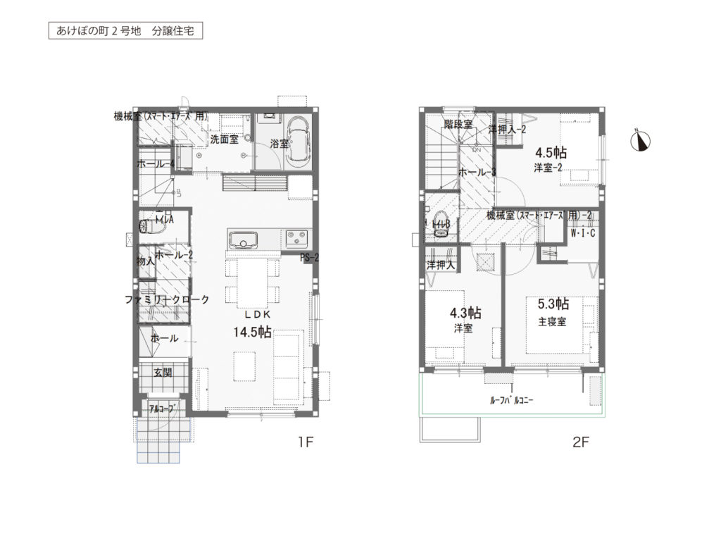
■土地面積 ・・・・110.20㎡(33.33坪)
■延床面積 ・・・・79.80㎡(24.13坪)
■1階床面積 ・・・・42.69㎡
■2階床面積 ・・・・37.11㎡
南輝小学校区/福南中学校区
【所在地】
岡山市南区あけぼの町31番5
【交通】
岡電バス「南輝小学校前」300m (徒歩4分)
■2026年03月17日撮影

間取り

間取り

区画図

区画図
号地 土地面積 販売価格
2 110.20㎡(33.33坪) 46,880,000円

ロケーション

ロケーション
医療機関
岡山ろうさい病院
徒歩10分(800m)
ロケーション
商業施設
天満屋ハピータウン岡南店
徒歩6分(440m)
ロケーション
商業施設
HCタイム岡南店
徒歩9分(650m)
ロケーション
商業施設
ローソン岡山築港新町一丁目店
徒歩4分(250m)
ロケーション
教育施設
南輝小学校
徒歩8分(600m)
ロケーション
教育施設
福南中学校
徒歩10分(800m)
ロケーション
金融機関
中国銀行 岡南支店
徒歩9分(650m)
ロケーション
公園&その他
TOHOシネマズ岡南
徒歩8分(600m)

物件概要

  • 所在地岡山市南区あけぼの町31番5
  • 入居時期即入居可
  • 交通岡電バス「南輝小学校前」300m (徒歩4分)
  • 構造軽量鉄骨造2階建て/フラットルーフ
  • 総区画数2区画
地目 宅地
都市計画 市街化区域
用途地域 第1種中高層住居専用地域
建ぺい率 60%
容積率 200%
道路幅員 市道 南側:幅員約6.0m
設備 ●水道/市営水道 ●排水/公共下水 ●雨水/側溝●全館空調スマートエアーズ ●太陽光パネル(4.240kw) ●エコキュート ●IHヒーター●玄関電子キー(ラ・ロックⅡ) ●24時間換気システム ●BEV・PHEV専用コンセント
販売戸数 1戸
販売価格4688万円(税込)
土地面積 110.20㎡(33.33坪)
建物面積 1F:42.69㎡
2F:37.11㎡
延床面積 79.80㎡(24.13坪)
建物完成日 令和8年3月頃完成予定
建築確認番号 第ERI-25033535号(令和7年10月16日付)
取引態様 売主
備考 登記費用別途要。
情報更新日 2026年05月13日※先着順申込につき、ご希望の物件が成約済となる場合がございます。
広告主 トヨタホーム岡山株式会社 〒701-0144 岡山県岡山市北区久米161 TEL:086-941-8822 免許番号:国土交通大臣(2)第9718号

※表示の徒歩分数は地図上で計測した概算距離を1分80mで算出した所要時間です。

※次回情報更新日/2026年05月27日

ご来場予約
あけぼの町2号地

必須種別
必須見学希望日

当日予約をご希望の場合は、お電話にてお問い合わせください。

必須お名前
必須フリガナ
必須メールアドレス
必須メールアドレス(確認)
必須お客様について
必須郵便番号
必須都道府県
必須市区町村
必須番地・アパートマンション名
必須電話番号
任意生年月日
任意性別
任意その他ご連絡がありましたらご入力ください

【お預かりした個人情報の利用目的】

お客様の個人情報のお取り扱いについて、プライバシーポリシーをご確認のうえ、ご同意ください。

【ご登録のメールアドレスについて】

当フォームでお客様にご入力いただきましたEメールアドレスにつきましては、トヨタホームからの特定電子メール(広告宣伝メール)送信のために利用させていただきます。※不要な場合は、いつでも停止できます。