PrimeLifeTerrace岡山
1号地モデルハウス
- 所在地
- 岡山市北区谷万成二丁目81番7
- 交 通
- 中鉄バス「楢津口」573m(徒歩8分)
- 学 区
- 伊島小学校区・京山中学校区
Gallery
ギャラリー
リビングの横断をしないコンパクトな回遊動線。
家中どこにいても心地よい全館空調「Smart Airs PLUS」搭載。
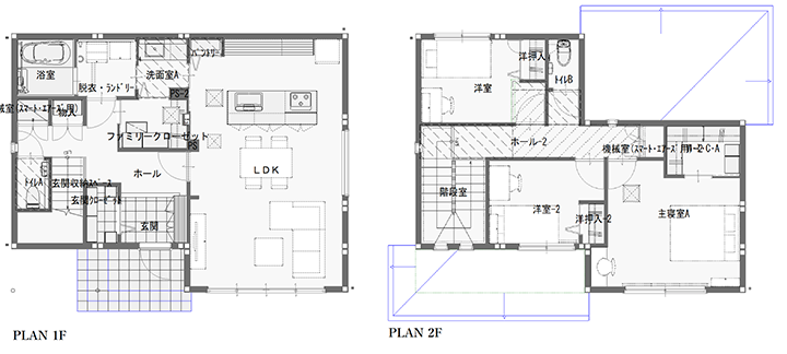
Layout
間取り

- 販売価格
- -万円(税込)
-
- 土地面積
- 187.14m2(56.60坪)
- 延床面積
- 115.72m2(35.00坪)
-
- 1階床面積
- 63.80m2
- 2階床面積
- 51.92m2
Plot Map
区画図
全30区画、全敷地面積50坪以上の大型分譲地。

Location
周辺環境
病院・郵便局・買い物施設・飲食店など生活必需施設がすぐ近くて便利。
国道53号・180号もすぐの距離なので
マイカー通勤も楽々。
-

岡山万成郵便局
約570m/徒歩8分
-

岡山中央病院
約950m/徒歩12分
-

天満屋ハピーズ 京山店
約650m/徒歩9分
-

セブンイレブン 岡山津島京町店
約620m/徒歩8分
-

あゆみ保育園
約1,595m/徒歩20分
-

岡山市立伊島小学校
約1,750m/徒歩22分
-

岡山市立京山中学校
約780m/徒歩10分
-

万成遊園地
約800m/徒歩10分
-

津島公園
約1,500m/徒歩19分
Equipment
設備
-

全館空調「スマート・エアーズ」
夏でも冬でも、家中どこにいても心地よさを実感できるオリジナル空調システム「スマート・エアーズ」。部屋間の温度差を抑え、ヒートショックを防ぎます。標準搭載されている換気システム「ピュア24セントラル」で、アレルギーの原因とされる花粉やホコリの低減にも効果を発揮します。
-

ピュア24 セントラル
「ピュア24セントラル」は、天井裏・1-2階間にダクトを配して全室の換気を24時間自動的に制御する、セントラル方式の換気システムです。それぞれの階に全熱交換器を配置することによって排気から熱や湿気を回収し、室内に新鮮な空気を送り込みます。さらに、有害物質除去にもきめ細かく対応。
-

太陽光パネル
太陽光からクリーンエネルギーをつくりだす、高効率のソーラーパネルを搭載。生活に必要なエネルギーを自然エネルギーでまかなう太陽光発電は、環境への負荷が少なく経済的。昼間の太陽光発電で余った電気は電力会社に売却することもできるので、光熱費の節約にもつながります。
-

非常時給電システム
停電時などにクルマから住まいへ電力給電できる「クルマde給電」。突然の停電時にもクルマを電源として一部のお部屋に給電することができるシステムです。料理に欠かせないキッチンや家族が過ごすリビングなどに電気を供給することができ、在宅避難が可能になります。
-

タイル外壁
トヨタホームのタイル外壁は、すべて現場施工。汚れがたまりやすいタイル間のつなぎ目地がないため、強度の高さに加えて仕上がりも美しく、デザインにも優れています。さらに目地を交換する手間が省けるのでメンテナンスも容易。美しさを長く保つことができます。
-

エコキュート
空気の熱を使ってお湯を沸かす新発想の給湯システムです。トヨタグループでは、業界にさきがけて高効率型のエコキュートを開発。省エネ性能の追求により、ランニングコストをガス給湯器の約1/5~1/8※1に抑えています。オリジナルエコキュートを活用したトヨタホームのオール電化は、CO2の発生が少なく経済的。
※1:[試算条件]・JRA4050:2007Rの年間給湯効率に基づき、ランニングコストを試算。・給湯負荷:IBEC-Lモード(421L:43℃換算)の湯量で試算。・お住まいの地域により光熱費は異なります。※オリジナルエコキュート以外のエコキュートを使用する場合があります。
-

ラ・ロックⅡ
自動車のドアハンドルの技術を応用した電子鍵。電子キーを携帯していれば、ドアハンドルにタッチするだけで玄関ドアの施解錠が可能です。夜間はもちろん手が塞がっていても肘などで反応します。リモコンでの操作も可能です。
Outline
概要
PrimeLifeTerrace岡山 1号地モデルハウス 物件概要
-
- 地目
- 宅地
-
- 都市計画
- 市街化区域
-
- 用途地域
- 第1種住居地域
-
- 建ぺい率
- 60%
-
- 容積率
- 200%
-
- 道路幅員
- 団地内開発道路 6.0m
-
- 設備
-
-
- 電気
- 中国電力
-
- 水道
- 市営水道
-
- 排水
- 公共下水
-
- 雨水
- 宅地桝
- 全館空調スマートエアーズ
- 太陽光パネル(6.170kw)
- IHヒーター
- エコキュート
- 玄関電子キー(ラ・ロックⅡ)
- BEV・PHV専用コンセント
- 非常時給電システム
- 24時間換気システム
-
- 販売戸数
- -
-
- 販売価格
- -
-
- 土地面積
- 187.14m2(56.60坪)
-
- 建物面積
- 1F:63.80m2
2F:51.92m2
-
- 延床面積
- 115.72m2(35.00坪)
-
- 建物完成日
- 令和7年9月
-
- 建築確認番号
- 第ERI-25012556号(令和7年5月13日付)
-
- 取引態様
- 売主
-
- 備考
- -
-
- 情報更新日
- 2025年11月1日
-
- 広告主
- トヨタホーム岡山株式会社
〒701-0144 岡山県岡山市北区久米161
TEL:086-941-8822
免許番号:国土交通大臣(2)第9718号
- ※表示の徒歩分数は地図上で計測した概算距離を1分80mで算出した所要時間です。
PrimeLifeTerrace岡山
15号地
- 所在地
- 岡山市北区谷万成二丁目75番15
- 交 通
- 中鉄バス「楢津口」573m(徒歩8分)
- 学 区
- 伊島小学校区・京山中学校区
Gallery
ギャラリー
光あふれる大空間・大開口LDK。
家中どこにいても心地よい全館空調「Smart Airs PLUS」搭載。
Layout
間取り

- 販売価格
- 5,980万円(税込)
-
- 土地面積
- 178.92m2(54.12坪)
- 延床面積
- 112.50m2(34.03坪)
-
- 1階床面積
- 57.81m2
- 2階床面積
- 54.69m2
Plot Map
区画図
全30区画、
全敷地面積50坪以上の大型分譲地。

Location
周辺環境
病院・郵便局・買い物施設・飲食店など生活必需施設がすぐ近くて便利。
国道53号・180号もすぐの距離なので
マイカー通勤も楽々。
-

岡山万成郵便局
約570m/徒歩8分
-

岡山中央病院
約950m/徒歩12分
-

天満屋ハピーズ 京山店
約650m/徒歩9分
-

セブンイレブン 岡山津島京町店
約620m/徒歩8分
-

あゆみ保育園
約1,595m/徒歩20分
-

岡山市立伊島小学校
約1,750m/徒歩22分
-

岡山市立京山中学校
約780m/徒歩10分
-

万成遊園地
約800m/徒歩10分
-

津島公園
約1,500m/徒歩19分
Equipment
設備
-

全館空調「スマート・エアーズ」
夏でも冬でも、家中どこにいても心地よさを実感できるオリジナル空調システム「スマート・エアーズ」。部屋間の温度差を抑え、ヒートショックを防ぎます。標準搭載されている換気システム「ピュア24セントラル」で、アレルギーの原因とされる花粉やホコリの低減にも効果を発揮します。
-

ピュア24 セントラル
「ピュア24セントラル」は、天井裏・1-2階間にダクトを配して全室の換気を24時間自動的に制御する、セントラル方式の換気システムです。それぞれの階に全熱交換器を配置することによって排気から熱や湿気を回収し、室内に新鮮な空気を送り込みます。さらに、有害物質除去にもきめ細かく対応。
-

太陽光パネル
太陽光からクリーンエネルギーをつくりだす、高効率のソーラーパネルを搭載。生活に必要なエネルギーを自然エネルギーでまかなう太陽光発電は、環境への負荷が少なく経済的。昼間の太陽光発電で余った電気は電力会社に売却することもできるので、光熱費の節約にもつながります。
-

非常時給電システム
停電時などにクルマから住まいへ電力給電できる「クルマde給電」。突然の停電時にもクルマを電源として一部のお部屋に給電することができるシステムです。料理に欠かせないキッチンや家族が過ごすリビングなどに電気を供給することができ、在宅避難が可能になります。
-

タイル外壁
トヨタホームのタイル外壁は、すべて現場施工。汚れがたまりやすいタイル間のつなぎ目地がないため、強度の高さに加えて仕上がりも美しく、デザインにも優れています。さらに目地を交換する手間が省けるのでメンテナンスも容易。美しさを長く保つことができます。
-

エコキュート
空気の熱を使ってお湯を沸かす新発想の給湯システムです。トヨタグループでは、業界にさきがけて高効率型のエコキュートを開発。省エネ性能の追求により、ランニングコストをガス給湯器の約1/5~1/8※1に抑えています。オリジナルエコキュートを活用したトヨタホームのオール電化は、CO2の発生が少なく経済的。
※1:[試算条件]・JRA4050:2007Rの年間給湯効率に基づき、ランニングコストを試算。・給湯負荷:IBEC-Lモード(421L:43℃換算)の湯量で試算。・お住まいの地域により光熱費は異なります。※オリジナルエコキュート以外のエコキュートを使用する場合があります。
-

ラ・ロックⅡ
自動車のドアハンドルの技術を応用した電子鍵。電子キーを携帯していれば、ドアハンドルにタッチするだけで玄関ドアの施解錠が可能です。夜間はもちろん手が塞がっていても肘などで反応します。リモコンでの操作も可能です。
Outline
概要
PrimeLifeTerrace岡山 15号地 物件概要
-
- 地目
- 宅地
-
- 都市計画
- 市街化区域
-
- 用途地域
- 第1種住居地域
-
- 建ぺい率
- 60%
-
- 容積率
- 200%
-
- 道路幅員
- 団地内開発道路 6.0m
-
- 設備
-
-
- 電気
- 中国電力
-
- 水道
- 市営水道
-
- 排水
- 公共下水
-
- 雨水
- 宅地桝
- 全館空調スマートエアーズ
- 太陽光パネル(5.565kw)
- IHヒーター
- エコキュート
- 玄関電子キー(ラ・ロックⅡ)
- BEV・PHV専用コンセント
- 非常時給電システム
- 24時間換気システム
-
- 販売戸数
- 1戸
-
- 販売価格
- 5,980万円(税込)
-
- 土地面積
- 178.92m2(54.12坪)
-
- 建物面積
- 1F:57.81m2
2F:54.69m2
-
- 延床面積
- 112.50m2(34.03坪)
-
- 建物完成日
- 令和7年9月
-
- 建築確認番号
- 第ERI-25012557号(令和7年5月13日付)
-
- 取引態様
- 売主
-
- 備考
- -
-
- 情報更新日
- 2025年11月1日
-
- 広告主
- トヨタホーム岡山株式会社
〒701-0144 岡山県岡山市北区久米161
TEL:086-941-8822
免許番号:国土交通大臣(2)第9718号
- ※表示の徒歩分数は地図上で計測した概算距離を1分80mで算出した所要時間です。
早島モデルハウス
- 所在地
- 都窪郡早島町前潟字屋敷割1066番8、1066番9
- 交 通
- JR瀬戸大橋線・宇野みなと線 「早島駅」(徒歩18分)
- 学 区
- 早島小学校区・早島中学校区
Gallery
ギャラリー
全館空調システム「スマート・エアーズ」設置で、
玄関ホールから洗面室まで、家中どこにいても快適。
Layout
間取り

- 販売価格
- -万円(税込)
-
- 土地面積
- 171.72m2(51.94坪)
- 延床面積
- 117.95m2(35.67坪)
-
- 1階床面積
- 64.96m2
- 2階床面積
- 52.99m2
Plot Map
区画図
国道2号線まで車で2分。
岡山市・倉敷市どちらにも行きやすく
車生活に便利な立地です。

Location
周辺環境
小学校・中学校が1km圏内で
通学も安心。
生活に便利な施設が
充実したエリアです。
-

JR早島駅
約1,400m/徒歩18分
-

早島町役場
約800m/徒歩10分
-

マルナカ早島店
約500m/徒歩6分
-

ザグザグ早島店
約700m/徒歩9分
-

早島小学校
約900m/徒歩11分
-

早島中学校
約650m/徒歩9分
-

玉島信用金庫 早島支店
約210m/徒歩3分
-

中国銀行 早島支店
約650m/徒歩8分
-

トマト銀行 早島支店
約750m/徒歩10分
Equipment
設備
-

全館空調「スマート・エアーズ」
夏でも冬でも、家中どこにいても心地よさを実感できるオリジナル空調システム「スマート・エアーズ」。部屋間の温度差を抑え、ヒートショックを防ぎます。標準搭載されている換気システム「ピュア24セントラル」で、アレルギーの原因とされる花粉やホコリの低減にも効果を発揮します。
-

ピュア24 セントラル
「ピュア24セントラル」は、天井裏・1-2階間にダクトを配して全室の換気を24時間自動的に制御する、セントラル方式の換気システムです。それぞれの階に全熱交換器を配置することによって排気から熱や湿気を回収し、室内に新鮮な空気を送り込みます。さらに、有害物質除去にもきめ細かく対応。24時間快適な空気環境を保ちます。
-

太陽光パネル
太陽光からクリーンエネルギーをつくりだす、高効率のソーラーパネルを搭載。生活に必要なエネルギーを自然エネルギーでまかなう太陽光発電は、環境への負荷が少なく経済的。昼間の太陽光発電で余った電気は電力会社に売却することもできるので、光熱費の節約にもつながります。
-

非常時給電システム
停電時などにクルマから住まいへ電力給電できる「クルマde給電」。突然の停電時にもクルマを電源として一部のお部屋に給電することができるシステムです。料理に欠かせないキッチンや家族が過ごすリビングなどに電気を供給することができ、在宅避難が可能になります。
-

エコキュート
空気の熱を使ってお湯を沸かす新発想の給湯システムです。トヨタグループでは、業界にさきがけて高効率型のエコキュートを開発。省エネ性能の追求により、ランニングコストをガス給湯器の約1/5~1/8※1に抑えています。オリジナルエコキュートを活用したトヨタホームのオール電化は、CO2の発生が少なく経済的。
※1:[試算条件]・JRA4050:2007Rの年間給湯効率に基づき、ランニングコストを試算。・給湯負荷:IBEC-Lモード(421L:43℃換算)の湯量で試算。・お住まいの地域により光熱費は異なります。※オリジナルエコキュート以外のエコキュートを使用する場合があります。
-

ラ・ロックⅡ
自動車のドアハンドルの技術を応用した電子鍵。電子キーを携帯していれば、ドアハンドルにタッチするだけで玄関ドアの施解錠が可能です。夜間はもちろん手が塞がっていても肘などで反応します。リモコンでの操作も可能です。
Outline
概要
早島モデルハウス 物件概要
-
- 地目
- 宅地
-
- 都市計画
- 市街化区域
-
- 用途地域
- 第1種住居地域
-
- 建ぺい率
- 60%
-
- 容積率
- 200%
-
- 道路幅員
- 団地内位置指定道路 5.0m
-
- 設備
-
-
- 電気
- 中国電力
-
- 水道
- 市営水道
-
- 排水
- 公共下水
-
- ガス
- LPGガス
-
- 雨水
- 側溝
- 全館空調スマートエアーズ
- 太陽光パネル
- IHヒーター
- 浴室乾燥機
- エコキュート
- ラ・ロックⅡ(電子錠)
- 24時間換気システム
- 非常時給電システム
-
- 販売戸数
- -
-
- 販売価格
- -
-
- 土地面積
- 171.72m2(51.94坪)
-
- 建物面積
- 1F:64.96m2
2F:52.99m2
-
- 延床面積
- 117.95m2(35.67坪)
-
- 建物完成日
- 令和7年2月
-
- 建築確認番号
- 第ERI-24029639号(令和6年9月9日付)
-
- 取引態様
- 売主
-
- 備考
- -
-
- 情報更新日
- 2025年3月5日
-
- 広告主
- トヨタホーム岡山株式会社
〒701-0144 岡山県岡山市北区久米161
TEL:086-941-8822
免許番号:国土交通大臣(2)第9718号
- ※表示の徒歩分数は地図上で計測した概算距離を1分80mで算出した所要時間です。
上東1号地
- 所在地
- 倉敷市上東字萬茶羅寺 235 番 1
- 交 通
- JR山陽本線「庭瀬」駅 3,000m(徒歩 38 分)
- 学 区
- 庄小学校区・庄中学校区
Gallery
ギャラリー
コンパクトながら風通しと採光を確保した明るい平屋建て。
小・中学校まで徒歩 5 分圏内なので、子育て世帯におすすめです。
Layout
間取り

- 販売価格
- 4,200万円(税込)
-
- 土地面積
- 151.56m2(45.84坪)
- 延床面積
- 71.97m2(21.77坪)
-
- 1階床面積
- 71.97m2
Plot Map
区画図
岡山市内、倉敷市内どちらへも
アクセスしやすい立地。
閑静な住宅街で暮らしやすい。

Location
周辺環境
小・中学校まで徒歩5分圏内。
学校が近いので、
学校への送り迎えも安心です。
-

倉敷市庄支所
約950m/徒歩12分
-

プラザ庄店
約470m/徒歩6分
-

ZAGZAG上庄店
約900m/徒歩12分
-

ファミリーマート倉敷下庄店
約675m/徒歩9分
-

ハローズ中庄店
約2,875m/徒歩36分
-

倉敷市庄小学校
約315m/徒歩4分
-

倉敷市立庄中学校
約345m/徒歩5分
-

吉備郵便局
約1,850m/徒歩24分
Equipment
設備
-

全館空調「スマート・エアーズ」
夏でも冬でも、家中どこにいても心地よさを実感できるオリジナル空調システム「スマート・エアーズ」。部屋間の温度差を抑え、ヒートショックを防ぎます。標準搭載されている換気システム「ピュア24セントラル」で、アレルギーの原因とされる花粉やホコリの低減にも効果を発揮します。
-

ピュア24 セントラル
「ピュア24セントラル」は、天井裏・1-2階間にダクトを配して全室の換気を24時間自動的に制御する、セントラル方式の換気システムです。それぞれの階に全熱交換器を配置することによって排気から熱や湿気を回収し、室内に新鮮な空気を送り込みます。さらに、有害物質除去にもきめ細かく対応。24時間快適な空気環境を保ちます。
-

太陽光パネル
太陽光からクリーンエネルギーをつくりだす、高効率のソーラーパネルを搭載。生活に必要なエネルギーを自然エネルギーでまかなう太陽光発電は、環境への負荷が少なく経済的。昼間の太陽光発電で余った電気は電力会社に売却することもできるので、光熱費の節約にもつながります。
-

非常時給電システム
停電時などにクルマから住まいへ電力給電できる「クルマde給電」。突然の停電時にもクルマを電源として一部のお部屋に給電することができるシステムです。料理に欠かせないキッチンや家族が過ごすリビングなどに電気を供給することができ、在宅避難が可能になります。
-

エコキュート
空気の熱を使ってお湯を沸かす新発想の給湯システムです。トヨタグループでは、業界にさきがけて高効率型のエコキュートを開発。省エネ性能の追求により、ランニングコストをガス給湯器の約1/5~1/8※1に抑えています。オリジナルエコキュートを活用したトヨタホームのオール電化は、CO2の発生が少なく経済的。
※1:[試算条件]・JRA4050:2007Rの年間給湯効率に基づき、ランニングコストを試算。・給湯負荷:IBEC-Lモード(421L:43℃換算)の湯量で試算。・お住まいの地域により光熱費は異なります。※オリジナルエコキュート以外のエコキュートを使用する場合があります。
-

ラ・ロックⅡ
自動車のドアハンドルの技術を応用した電子鍵。電子キーを携帯していれば、ドアハンドルにタッチするだけで玄関ドアの施解錠が可能です。夜間はもちろん手が塞がっていても肘などで反応します。リモコンでの操作も可能です。
Outline
概要
上東1号地 物件概要
-
- 地目
- 宅地
-
- 都市計画
- 市街化区域
-
- 用途地域
- 第1種低層住居専用地域
-
- 建ぺい率
- 50%
-
- 容積率
- 100%
-
- 道路幅員
- 公道 北側 約4.0m、東側 約5.0m
-
- 設備
-
-
- 電気
- 中国電力
-
- 水道
- 市営水道
-
- 排水
- 公共下水
-
- 雨水
- 宅地桝
- 全館空調スマートエアーズ
- 太陽光パネル
- IHヒーター
- 浴室乾燥機
- エコキュート
- ラ・ロックⅡ(電子錠)
- 24時間換気システム
- 非常時給電システム
-
- 販売戸数
- 1戸
-
- 販売価格
- 4,200万円(税込)
-
- 土地面積
- 151.56m2(45.84坪)
-
- 建物面積
- 1F:71.97m2
-
- 延床面積
- 71.97m2(21.77坪)
-
- 建物完成日
- 令和6年7月末
-
- 建築確認番号
- 第ERI-24006188号(令和6年3月11日付)
-
- 取引態様
- 売主
-
- 備考
- 町内会費5,000円/年、ゴミステーション利用負担金40,000円/初回のみ、集会所改修積立金10,000円/年
-
- 情報更新日
- 2024年11月1日※先着順申込につき、ご希望の物件が成約済となる場合がございます。
-
- 広告主
- トヨタホーム岡山株式会社
〒701-0144 岡山県岡山市北区久米161
TEL:086-941-8822
免許番号:国土交通大臣(2)第9718号
- ※表示の徒歩分数は地図上で計測した概算距離を1分80mで算出した所要時間です。
上東3号地
- 所在地
- 倉敷市上東字萬茶羅寺 235 番 21
- 交 通
- JR山陽本線「庭瀬」駅 3,000m(徒歩 38 分)
- 学 区
- 庄小学校区・庄中学校区
Gallery
ギャラリー
1人の時間をゆっくり過ごすことができる半個室タイプのワークスペースで仕事も趣味も充実した暮らしを実現できます。
Layout
間取り

- 販売価格
- 4,150万円(税込)
-
- 土地面積
- 151.67m2(45.88坪)
- 延床面積
- 90.92m2(27.50坪)
-
- 1階床面積
- 48.19m2
- 2階床面積
- 42.73m2
Plot Map
区画図
岡山市内、倉敷市内どちらへも
アクセスしやすい立地。
閑静な住宅街で暮らしやすい。

Location
周辺環境
小・中学校まで徒歩5分圏内。
学校が近いので、
学校への送り迎えも安心です。
-

倉敷市庄支所
約950m/徒歩12分
-

プラザ庄店
約470m/徒歩6分
-

ZAGZAG上庄店
約900m/徒歩12分
-

ファミリーマート倉敷下庄店
約675m/徒歩9分
-

ハローズ中庄店
約2,875m/徒歩36分
-

倉敷市庄小学校
約315m/徒歩4分
-

倉敷市立庄中学校
約345m/徒歩5分
-

吉備郵便局
約1,850m/徒歩24分
Equipment
設備
-

全館空調「スマート・エアーズ」
夏でも冬でも、家中どこにいても心地よさを実感できるオリジナル空調システム「スマート・エアーズ」。部屋間の温度差を抑え、ヒートショックを防ぎます。標準搭載されている換気システム「ピュア24セントラル」で、アレルギーの原因とされる花粉やホコリの低減にも効果を発揮します。
-

ピュア24 セントラル
「ピュア24セントラル」は、天井裏・1-2階間にダクトを配して全室の換気を24時間自動的に制御する、セントラル方式の換気システムです。それぞれの階に全熱交換器を配置することによって排気から熱や湿気を回収し、室内に新鮮な空気を送り込みます。さらに、有害物質除去にもきめ細かく対応。24時間快適な空気環境を保ちます。
-

太陽光パネル
太陽光からクリーンエネルギーをつくりだす、高効率のソーラーパネルを搭載。生活に必要なエネルギーを自然エネルギーでまかなう太陽光発電は、環境への負荷が少なく経済的。昼間の太陽光発電で余った電気は電力会社に売却することもできるので、光熱費の節約にもつながります。
-

非常時給電システム
停電時などにクルマから住まいへ電力給電できる「クルマde給電」。突然の停電時にもクルマを電源として一部のお部屋に給電することができるシステムです。料理に欠かせないキッチンや家族が過ごすリビングなどに電気を供給することができ、在宅避難が可能になります。
-

エコキュート
空気の熱を使ってお湯を沸かす新発想の給湯システムです。トヨタグループでは、業界にさきがけて高効率型のエコキュートを開発。省エネ性能の追求により、ランニングコストをガス給湯器の約1/5~1/8※1に抑えています。オリジナルエコキュートを活用したトヨタホームのオール電化は、CO2の発生が少なく経済的。
※1:[試算条件]・JRA4050:2007Rの年間給湯効率に基づき、ランニングコストを試算。・給湯負荷:IBEC-Lモード(421L:43℃換算)の湯量で試算。・お住まいの地域により光熱費は異なります。※オリジナルエコキュート以外のエコキュートを使用する場合があります。
-

ラ・ロックⅡ
自動車のドアハンドルの技術を応用した電子鍵。電子キーを携帯していれば、ドアハンドルにタッチするだけで玄関ドアの施解錠が可能です。夜間はもちろん手が塞がっていても肘などで反応します。リモコンでの操作も可能です。
Outline
概要
上東3号地 物件概要
-
- 地目
- 宅地
-
- 都市計画
- 市街化区域
-
- 用途地域
- 第1種低層住居専用地域
-
- 建ぺい率
- 50%
-
- 容積率
- 100%
-
- 道路幅員
- 公道 北側 約4.0m
-
- 設備
-
-
- 水道
- 市営水道
-
- 排水
- 公共下水
-
- 雨水
- 宅地桝
- 全館空調スマートエアーズ
- 太陽光パネル
- IHヒーター
- 浴室乾燥機
- エコキュート
- ラ・ロックⅡ(電子錠)
- 24時間換気システム
- 非常時給電システム
-
- 販売戸数
- 1戸
-
- 販売価格
- 4,150万円(税込)
-
- 土地面積
- 151.67m2(45.88坪)
-
- 建物面積
- 1F:48.19m2
2F:42.73m2
-
- 延床面積
- 90.92m2(27.50坪)
-
- 建物完成日
- 令和5年7月27日
-
- 建築確認番号
- 第ERI-22047448号(令和4年12月15日付)
-
- 取引態様
- 売主
-
- 備考
- 町内会へは必ず入会してください。(町内会費5,000円/年、ゴミステーション利用負担金40,000円/初回のみ、集会所改修積立金10,000円/年、町内会寄付金あり)
-
- 情報更新日
- 2024年11月1日※先着順申込につき、ご希望の物件が成約済となる場合がございます。
-
- 広告主
- トヨタホーム岡山株式会社
〒701-0144 岡山県岡山市北区久米161
TEL:086-941-8822
免許番号:国土交通大臣(2)第9718号
- ※表示の徒歩分数は地図上で計測した概算距離を1分80mで算出した所要時間です。
東川口ウィンザーコートⅡ
5号地
- 所在地
- 福山市東川口町一丁目 44 番 51
- 交 通
- JR山陽本線「福山」駅 2,600m(徒歩 33 分)
- 学 区
- 川口東小学校区・城南中学校区
Gallery
ギャラリー
マリンテイストで統一された、リラックスできる分譲住宅。
ずらしたLDK配置で個室感のあるリビング。
Layout
間取り

- 販売価格
- 4,898万円(税込)
-
- 土地面積
- 148.84m2(45.02坪)
- 延床面積
- 111.60m2(33.75坪)
-
- 1階床面積
- 54.36m2
- 2階床面積
- 57.24m2
Plot Map
区画図
海風薫るリゾートフルな邸宅地。
街区のゲートファサードサイドを囲み、
周囲の環境から独立した空間。

Location
周辺環境
商業・教育・医療環境も整った
これからの暮らし方。
-

JR山陽本線「福山駅」
約2,560m/徒歩32分
-

福山記念病院
約1,040m/徒歩13分
-

エブリイ 緑町店
約1,575m/徒歩20分
-

ホリデイスポーツクラブ
約315m/徒歩4分
-

福山市立川口保育所
約1,295m/徒歩16分
-

福山市立川口東小学校
約1,180m/徒歩15分
-

福山市立城南中学校
約2,000m/徒歩25分
-

緑町公園
約875m/徒歩11分
-

福山みなと公園
約680m/徒歩9分
Equipment
設備
-

全館空調「スマート・エアーズ」
夏でも冬でも、家中どこにいても心地よさを実感できるオリジナル空調システム「スマート・エアーズ」。部屋間の温度差を抑え、ヒートショックを防ぎます。標準搭載されている換気システム「ピュア24セントラル」で、アレルギーの原因とされる花粉やホコリの低減にも効果を発揮します。
-

ピュア24 セントラル
「ピュア24セントラル」は、天井裏・1-2階間にダクトを配して全室の換気を24時間自動的に制御する、セントラル方式の換気システムです。それぞれの階に全熱交換器を配置することによって排気から熱や湿気を回収し、室内に新鮮な空気を送り込みます。さらに、有害物質除去にもきめ細かく対応。24時間快適な空気環境を保ちます。
-

太陽光パネル
太陽光からクリーンエネルギーをつくりだす、高効率のソーラーパネルを搭載。生活に必要なエネルギーを自然エネルギーでまかなう太陽光発電は、環境への負荷が少なく経済的。昼間の太陽光発電で余った電気は電力会社に売却することもできるので、光熱費の節約にもつながります。
-

非常時給電システム
停電時などにクルマから住まいへ電力給電できる「クルマde給電」。突然の停電時にもクルマを電源として一部のお部屋に給電することができるシステムです。料理に欠かせないキッチンや家族が過ごすリビングなどに電気を供給することができ、在宅避難が可能になります。
-

ラ・ロックⅡ
自動車のドアハンドルの技術を応用した電子鍵。電子キーを携帯していれば、ドアハンドルにタッチするだけで玄関ドアの施解錠が可能です。夜間はもちろん手が塞がっていても肘などで反応します。リモコンでの操作も可能です。
Outline
概要
東川口ウィンザーコートⅡ 5号地 物件概要
-
- 地目
- 宅地
-
- 都市計画
- 市街化区域
-
- 用途地域
- 工業地域
-
- 建ぺい率
- 60%
-
- 容積率
- 200%
-
- 道路幅員
- 公道 団地内道路 約6.0~7.5m※公衆用道路(地番44番49)は共有持分100分の8を無償譲渡
-
- 設備
-
-
- 電気
- 中国電力
-
- 水道
- 市営水道
-
- 排水
- 公共下水
-
- 雨水
- 宅地桝
-
- ガス
- 都市ガス
- 全館空調スマートエアーズ
- 太陽光パネル
- オール電化住宅
- IHヒーター
- ラ・ロックⅡ(電子錠)
- 24時間換気システム
- 非常時給電システム
- EV・PHV専用コンセント
-
- 販売戸数
- 1戸
-
- 販売価格
- 4,898万円(税込)
-
- 土地面積
- 148.84m2(45.02坪)
-
- 建物面積
- 1F:54.36m2
2F:57.24m2
-
- 延床面積
- 111.60m2(33.75坪)
-
- 建物完成日
- 令和6年7月完成
-
- 建築確認番号
- 第ERI-24006872号(令和6年3月13日付)
-
- 取引態様
- 売主
-
- 情報更新日
- 2024年11月1日※先着順申込につき、ご希望の物件が成約済となる場合がございます。
-
- 広告主
- トヨタホーム岡山株式会社
〒701-0144 岡山県岡山市北区久米161
TEL:086-941-8822
免許番号:国土交通大臣(2)第9718号
- ※表示の徒歩分数は地図上で計測した概算距離を1分80mで算出した所要時間です。
東川口ウィンザーコートⅡ
6号地
- 所在地
- 福山市東川口町一丁目 44 番 50
- 交 通
- JR山陽本線「福山」駅 2,600m(徒歩 33 分)
- 学 区
- 川口東小学校区・城南中学校区
Gallery
ギャラリー
マリンテイストで統一された、リラックスできる分譲住宅。
ダークブラウンのシックな木の色味でヴィンテージ感のある空間を演出。
Layout
間取り

- 販売価格
- 4,848万円(税込)
-
- 土地面積
- 162.82m2(49.25坪)
- 延床面積
- 105.67m2(31.96坪)
-
- 1階床面積
- 51.07m2
- 2階床面積
- 54.60m2
Plot Map
区画図
海風薫るリゾートフルな邸宅地。
街区のゲートファサードサイドを囲み、
周囲の環境から独立した空間。

Location
周辺環境
商業・教育・医療環境も整った
これからの暮らし方。
-

JR山陽本線「福山駅」
約2,560m/徒歩32分
-

福山記念病院
約1,040m/徒歩13分
-

エブリイ 緑町店
約1,575m/徒歩20分
-

ホリデイスポーツクラブ
約315m/徒歩4分
-

福山市立川口保育所
約1,295m/徒歩16分
-

福山市立川口東小学校
約1,180m/徒歩15分
-

福山市立城南中学校
約2,000m/徒歩25分
-

緑町公園
約875m/徒歩11分
-

福山みなと公園
約680m/徒歩9分
Equipment
設備
-

全館空調「スマート・エアーズ」
夏でも冬でも、家中どこにいても心地よさを実感できるオリジナル空調システム「スマート・エアーズ」。部屋間の温度差を抑え、ヒートショックを防ぎます。標準搭載されている換気システム「ピュア24セントラル」で、アレルギーの原因とされる花粉やホコリの低減にも効果を発揮します。
-

ピュア24 セントラル
「ピュア24セントラル」は、天井裏・1-2階間にダクトを配して全室の換気を24時間自動的に制御する、セントラル方式の換気システムです。それぞれの階に全熱交換器を配置することによって排気から熱や湿気を回収し、室内に新鮮な空気を送り込みます。さらに、有害物質除去にもきめ細かく対応。24時間快適な空気環境を保ちます。
-

太陽光パネル
太陽光からクリーンエネルギーをつくりだす、高効率のソーラーパネルを搭載。生活に必要なエネルギーを自然エネルギーでまかなう太陽光発電は、環境への負荷が少なく経済的。昼間の太陽光発電で余った電気は電力会社に売却することもできるので、光熱費の節約にもつながります。
-

非常時給電システム
停電時などにクルマから住まいへ電力給電できる「クルマde給電」。突然の停電時にもクルマを電源として一部のお部屋に給電することができるシステムです。料理に欠かせないキッチンや家族が過ごすリビングなどに電気を供給することができ、在宅避難が可能になります。
-

ラ・ロックⅡ
自動車のドアハンドルの技術を応用した電子鍵。電子キーを携帯していれば、ドアハンドルにタッチするだけで玄関ドアの施解錠が可能です。夜間はもちろん手が塞がっていても肘などで反応します。リモコンでの操作も可能です。
Outline
概要
東川口ウィンザーコートⅡ 6号地 物件概要
-
- 地目
- 宅地
-
- 都市計画
- 市街化区域
-
- 用途地域
- 工業地域
-
- 建ぺい率
- 60%
-
- 容積率
- 200%
-
- 道路幅員
- 公道 団地内道路 約6.0~7.5m※公衆用道路(地番44番49)は共有持分100分の8を無償譲渡
-
- 設備
-
-
- 電気
- 中国電力
-
- 水道
- 市営水道
-
- 排水
- 公共下水
-
- 雨水
- 宅地桝
-
- ガス
- 都市ガス
- 全館空調スマートエアーズ
- 太陽光パネル
- オール電化住宅
- IHヒーター
- ラ・ロックⅡ(電子錠)
- 24時間換気システム
- 非常時給電システム
- EV・PHV専用コンセント
- 宅配ボックス
-
- 販売戸数
- 1戸
-
- 販売価格
- 4,848万円(税込)
-
- 土地面積
- 162.82m2(49.25坪)
-
- 建物面積
- 1F:51.07m2
2F:54.60m2
-
- 延床面積
- 105.67m2(31.96坪)
-
- 建物完成日
- 令和6年7月完成
-
- 建築確認番号
- 第ERI-24005046号(令和6年2月22日付)
-
- 取引態様
- 売主
-
- 情報更新日
- 2024年11月1日※先着順申込につき、ご希望の物件が成約済となる場合がございます。
-
- 広告主
- トヨタホーム岡山株式会社
〒701-0144 岡山県岡山市北区久米161
TEL:086-941-8822
免許番号:国土交通大臣(2)第9718号
- ※表示の徒歩分数は地図上で計測した概算距離を1分80mで算出した所要時間です。
東川口ウィンザーコートⅡ
7号地
- 所在地
- 福山市東川口町一丁目 44 番 1
- 交 通
- JR山陽本線「福山」駅 2,600m(徒歩 33 分)
- 学 区
- 川口東小学校区・城南中学校区
Gallery
ギャラリー
マリンテイストで統一された、リラックスできる分譲住宅。
洗面室&物干しスペース⇒ファミリークローゼットで洗濯が1か所で完結。
Layout
間取り

- 販売価格
- 4,677万円(税込)
-
- 土地面積
- 126.38m2(38.22坪)
- 延床面積
- 103.88m2(31.42坪)
-
- 1階床面積
- 51.63m2
- 2階床面積
- 52.25m2
Plot Map
区画図
海風薫るリゾートフルな邸宅地。
街区のゲートファサードサイドを囲み、
周囲の環境から独立した空間。

Location
周辺環境
商業・教育・医療環境も整った
これからの暮らし方。
-

JR山陽本線「福山駅」
約2,560m/徒歩32分
-

福山記念病院
約1,040m/徒歩13分
-

エブリイ 緑町店
約1,575m/徒歩20分
-

ホリデイスポーツクラブ
約315m/徒歩4分
-

福山市立川口保育所
約1,295m/徒歩16分
-

福山市立川口東小学校
約1,180m/徒歩15分
-

福山市立城南中学校
約2,000m/徒歩25分
-

緑町公園
約875m/徒歩11分
-

福山みなと公園
約680m/徒歩9分
Equipment
設備
-

全館空調「スマート・エアーズ」
夏でも冬でも、家中どこにいても心地よさを実感できるオリジナル空調システム「スマート・エアーズ」。部屋間の温度差を抑え、ヒートショックを防ぎます。標準搭載されている換気システム「ピュア24セントラル」で、アレルギーの原因とされる花粉やホコリの低減にも効果を発揮します。
-

ピュア24 セントラル
「ピュア24セントラル」は、天井裏・1-2階間にダクトを配して全室の換気を24時間自動的に制御する、セントラル方式の換気システムです。それぞれの階に全熱交換器を配置することによって排気から熱や湿気を回収し、室内に新鮮な空気を送り込みます。さらに、有害物質除去にもきめ細かく対応。24時間快適な空気環境を保ちます。
-

太陽光パネル
太陽光からクリーンエネルギーをつくりだす、高効率のソーラーパネルを搭載。生活に必要なエネルギーを自然エネルギーでまかなう太陽光発電は、環境への負荷が少なく経済的。昼間の太陽光発電で余った電気は電力会社に売却することもできるので、光熱費の節約にもつながります。
-

非常時給電システム
停電時などにクルマから住まいへ電力給電できる「クルマde給電」。突然の停電時にもクルマを電源として一部のお部屋に給電することができるシステムです。料理に欠かせないキッチンや家族が過ごすリビングなどに電気を供給することができ、在宅避難が可能になります。
-

エネファーム
都市ガスやLPガスから取り出した水素と、空気中の酸素との化学反応により発電する燃料電池システム。発電の際に発生する熱を利用し、給湯器としての役割も満たすコージェネレーションシステムです。エネルギーを有効活用するので、省エネにも大きく貢献します。
-

ラ・ロックⅡ
自動車のドアハンドルの技術を応用した電子鍵。電子キーを携帯していれば、ドアハンドルにタッチするだけで玄関ドアの施解錠が可能です。夜間はもちろん手が塞がっていても肘などで反応します。リモコンでの操作も可能です。
Outline
概要
東川口ウィンザーコートⅡ 7号地 物件概要
-
- 地目
- 宅地
-
- 都市計画
- 市街化区域
-
- 用途地域
- 工業地域
-
- 建ぺい率
- 60%
-
- 容積率
- 200%
-
- 道路幅員
- 公道 団地内道路 約6.0~7.5m※公衆用道路(地番44番49)は共有持分100分の8を無償譲渡
-
- 設備
-
-
- 電気
- 中国電力
-
- 水道
- 市営水道
-
- 排水
- 公共下水
-
- 雨水
- 宅地桝
- 全館空調スマートエアーズ
- 太陽光パネル
- エネファーム
- IHヒーター
- ラ・ロックⅡ(電子錠)
- 24時間換気システム
- 非常時給電システム
- EV・PHV専用コンセント
- 宅配ボックス
-
- 販売戸数
- 1戸
-
- 販売価格
- 4,677万円(税込)
-
- 土地面積
- 126.38m2(38.22坪)
-
- 建物面積
- 1F:51.63m2
2F:52.25m2
-
- 延床面積
- 103.88m2(31.42坪)
-
- 建物完成日
- 令和6年7月完成
-
- 建築確認番号
- 第ERI-24007860号(令和6年3月21日付)
-
- 取引態様
- 売主
-
- 情報更新日
- 2024年11月1日※先着順申込につき、ご希望の物件が成約済となる場合がございます。
-
- 広告主
- トヨタホーム岡山株式会社
〒701-0144 岡山県岡山市北区久米161
TEL:086-941-8822
免許番号:国土交通大臣(2)第9718号
- ※表示の徒歩分数は地図上で計測した概算距離を1分80mで算出した所要時間です。
東川口ウィンザーコート
29号地
- 所在地
- 福山市東川口町一丁目 44 番 34
- 交 通
- JR山陽本線「福山」駅 2,600m(徒歩 33 分)
- 学 区
- 川口東小学校区・城南中学校区
Gallery
ギャラリー
マリンテイストで統一された、リラックスできる分譲住宅。
ロフト収納、ランドリールーム、和室のある間取り。
Layout
間取り

- 販売価格
- 4,580万円(税込)
-
- 土地面積
- 154.05m2(46.60坪)
- 延床面積
- 110.35m2(33.38坪)
-
- 1階床面積
- 61.93m2
- 2階床面積
- 48.42m2
Plot Map
区画図
海風薫るリゾートフルな邸宅地。
街区のゲートファサードサイドを囲み、
周囲の環境から独立した空間。

Location
周辺環境
商業・教育・医療環境も整った
これからの暮らし方。
-

JR山陽本線「福山駅」
約2,560m/徒歩32分
-

福山記念病院
約1,040m/徒歩13分
-

エブリイ 緑町店
約1,575m/徒歩20分
-

ホリデイスポーツクラブ
約315m/徒歩4分
-

福山市立川口保育所
約1,295m/徒歩16分
-

福山市立川口東小学校
約1,180m/徒歩15分
-

福山市立城南中学校
約2,000m/徒歩25分
-

緑町公園
約875m/徒歩11分
-

福山みなと公園
約680m/徒歩9分
Equipment
設備
-

全館空調「スマート・エアーズ」
夏でも冬でも、家中どこにいても心地よさを実感できるオリジナル空調システム「スマート・エアーズ」。部屋間の温度差を抑え、ヒートショックを防ぎます。標準搭載されている換気システム「ピュア24セントラル」で、アレルギーの原因とされる花粉やホコリの低減にも効果を発揮します。
-

ピュア24 セントラル
「ピュア24セントラル」は、天井裏・1-2階間にダクトを配して全室の換気を24時間自動的に制御する、セントラル方式の換気システムです。それぞれの階に全熱交換器を配置することによって排気から熱や湿気を回収し、室内に新鮮な空気を送り込みます。さらに、有害物質除去にもきめ細かく対応。24時間快適な空気環境を保ちます。
-

太陽光パネル
太陽光からクリーンエネルギーをつくりだす、高効率のソーラーパネルを搭載。生活に必要なエネルギーを自然エネルギーでまかなう太陽光発電は、環境への負荷が少なく経済的。昼間の太陽光発電で余った電気は電力会社に売却することもできるので、光熱費の節約にもつながります。
-

非常時給電システム
停電時などにクルマから住まいへ電力給電できる「クルマde給電」。突然の停電時にもクルマを電源として一部のお部屋に給電することができるシステムです。料理に欠かせないキッチンや家族が過ごすリビングなどに電気を供給することができ、在宅避難が可能になります。
-

タイル外壁
トヨタホームのタイル外壁は、すべて現場施工。汚れがたまりやすいタイル間のつなぎ目地がないため、強度の高さに加えて仕上がりも美しく、デザインにも優れています。さらに目地を交換する手間が省けるのでメンテナンスも容易。美しさを長く保つことができます。
-

エネファーム
都市ガスやLPガスから取り出した水素と、空気中の酸素との化学反応により発電する燃料電池システム。発電の際に発生する熱を利用し、給湯器としての役割も満たすコージェネレーションシステムです。エネルギーを有効活用するので、省エネにも大きく貢献します。
-

ラ・ロックⅡ
自動車のドアハンドルの技術を応用した電子鍵。電子キーを携帯していれば、ドアハンドルにタッチするだけで玄関ドアの施解錠が可能です。夜間はもちろん手が塞がっていても肘などで反応します。リモコンでの操作も可能です。
Outline
概要
東川口ウィンザーコート 29号地 物件概要
-
- 地目
- 宅地
-
- 都市計画
- 市街化区域
-
- 用途地域
- 工業地域
-
- 建ぺい率
- 60%
-
- 容積率
- 200%
-
- 道路幅員
- 団地内道路 約6.0m
-
- 設備
-
-
- 電気
- 中国電力
-
- 水道
- 市営水道
-
- 排水
- 公共下水
-
- 雨水
- 宅地桝
-
- ガス
- 都市ガス
- 全館空調スマートエアーズ
- 太陽光パネル
- エネファーム
- IHヒーター
- ラ・ロックⅡ(電子錠)
- 24時間換気システム
- 非常時給電システム
- EV・PHV専用コンセント
-
- 販売戸数
- 1戸
-
- 販売価格
- 4,580万円(税込)
-
- 土地面積
- 154.05m2(46.60坪)
-
- 建物面積
- 1F:61.93m2
2F:48.42m2
-
- 延床面積
- 110.35m2(33.38坪)
-
- 建物完成日
- 令和4年5月19日完成
-
- 建築確認番号
- 第ERI-210441841号
-
- 取引態様
- 売主
-
- 情報更新日
- 2024年11月1日※先着順申込につき、ご希望の物件が成約済となる場合がございます。
-
- 広告主
- トヨタホーム岡山株式会社
〒701-0144 岡山県岡山市北区久米161
TEL:086-941-8822
免許番号:国土交通大臣(2)第9718号
- ※表示の徒歩分数は地図上で計測した概算距離を1分80mで算出した所要時間です。
東川口ウィンザーテラス
12号地
- 所在地
- 福山市東川口町一丁目 1831 番 8
- 交 通
- JR山陽本線「福山」駅 2,740m(徒歩 34 分)
- 学 区
- 川口東小学校区・城南中学校区
Gallery
ギャラリー
マリンテイストで統一された、リラックスできる分譲住宅。
2階 LDK で日当たりやプライバシーを確保してリラックスして過ごせます。
Layout
間取り

- 販売価格
- 3,980万円(税込)
-
- 土地面積
- 218.57m2(66.12坪)
- 延床面積
- 110.65m2(33.47坪)
-
- 1階床面積
- 55.07m2
- 2階床面積
- 52.58m2
Plot Map
区画図
海風薫るリゾートフルな邸宅地。
街区のゲートファサードサイドを囲み、
周囲の環境から独立した空間。

Location
周辺環境
商業・教育・医療環境も整った
これからの暮らし方。
-

JR山陽本線「福山駅」
約2,740m/徒歩34分
-

福山記念病院
約1,355m/徒歩17分
-

ハローズ緑町店
約1,950m/徒歩24分
-

ゆめタウン
約1,520m/徒歩19分
-

エブリイ 緑町店
約1,890m/徒歩24分
-

ホリデイスポーツクラブ
約635m/徒歩8分
-

福山市立川口東小学校
約910m/徒歩11分
-

福山市立城南中学校
約2,075m/徒歩26分
-

福山市立川口保育所
約1,015m/徒歩13分
-

緑町公園
約1,235m/徒歩15分
-

福山みなと公園
約950m/徒歩12分
Equipment
設備
-

ピュア24 セントラル
「ピュア24セントラル」は、天井裏・1-2階間にダクトを配して全室の換気を24時間自動的に制御する、セントラル方式の換気システムです。それぞれの階に全熱交換器を配置することによって排気から熱や湿気を回収し、室内に新鮮な空気を送り込みます。さらに、有害物質除去にもきめ細かく対応。24時間快適な空気環境を保ちます。
-

乾太くん
乾太くんは、ガス衣類乾燥機です。ガスだから実現できる、圧倒的な乾燥の速さ。天気や時間帯に左右されることなく、洗濯物がわずか1時間で乾く。パワフルな温風で繊維が根元から立ち上がり、ふんわり仕上がる。衣類乾燥を速く、心地よく。あなたの暮らしの質を高めます。
Outline
概要
東川口ウィンザーテラス 12号地 物件概要
-
- 地目
- 宅地
-
- 都市計画
- 市街化区域
-
- 用途地域
- 工業地域
-
- 建ぺい率
- 60%
-
- 容積率
- 200%
-
- 道路幅員
- 団地内6m
-
- 設備
-
-
- 電気
- 中国電力
-
- 水道
- 市営水道
-
- 排水
- 公共下水
-
- 雨水
- 宅地桝
-
- ガス
- 都市ガス
- ガス省エネ給湯器「エコジョーズ」
- ガス衣類乾燥機「乾太くん」
- 熱交換型24時間換気システム「ピュア24セントラル」
- 食器洗乾燥機
- 浴室乾燥暖房機
-
- 販売戸数
- 1戸
-
- 販売価格
- 3,980万円(税込)
-
- 土地面積
- 218.57m2(66.12坪)
-
- 建物面積
- 1F:55.07m2
2F:52.58m2
-
- 延床面積
- 110.65m2(33.47坪)
-
- 建物完成日
- 2022年2月末完成
-
- 建築確認番号
- 第ERI-21031917号(令和3年9月2日付)
-
- 取引態様
- 売主
-
- 情報更新日
- 2024年11月1日※先着順申込につき、ご希望の物件が成約済となる場合がございます。
-
- 広告主
- トヨタホーム岡山株式会社
〒701-0144 岡山県岡山市北区久米161
TEL:086-941-8822
免許番号:国土交通大臣(2)第9718号
- ※表示の徒歩分数は地図上で計測した概算距離を1分80mで算出した所要時間です。
東川口ウィンザーテラス
16号地
- 所在地
- 福山市東川口町一丁目1831番21
- 交 通
- JR山陽本線「福山」駅 2,740m(徒歩34分)
- 学 区
- 川口東小学校区・城南中学校区
Gallery
ギャラリー
マリンテイストで統一された、リラックスできる分譲住宅。
全館空調で年中快適&空気清潔。4台分の駐車スペースあり。
Layout
間取り

- 販売価格
- 4,499万円(税込)
-
- 土地面積
- 170.34m2(51.52坪)
- 延床面積
- 87.98m2(26.61坪)
-
- 1階床面積
- 43.55m2
- 2階床面積
- 44.43m2
Plot Map
区画図
海風薫るリゾートフルな邸宅地。
街区のゲートファサードサイドを囲み、
周囲の環境から独立した空間。

Location
周辺環境
商業・教育・医療環境も整った
これからの暮らし方。
-

JR山陽本線「福山駅」
約2,740m/徒歩34分
-

福山記念病院
約1,355m/徒歩17分
-

ハローズ緑町店
約1,950m/徒歩24分
-

ゆめタウン
約1,520m/徒歩19分
-

エブリイ 緑町店
約1,890m/徒歩24分
-

ホリデイスポーツクラブ
約635m/徒歩8分
-

福山市立川口東小学校
約910m/徒歩11分
-

福山市立城南中学校
約2,075m/徒歩26分
-

福山市立川口保育所
約1,015m/徒歩13分
-

緑町公園
約1,235m/徒歩15分
-

福山みなと公園
約950m/徒歩12分
Equipment
設備
-

太陽光パネル
太陽光からクリーンエネルギーをつくりだす、高効率のソーラーパネルを搭載。生活に必要なエネルギーを自然エネルギーでまかなう太陽光発電は、環境への負荷が少なく経済的。昼間の太陽光発電で余った電気は電力会社に売却することもできるので、光熱費の節約にもつながります。
-

エコキュート
空気の熱を使ってお湯を沸かす新発想の給湯システムです。トヨタグループでは、業界にさきがけて高効率型のエコキュートを開発。省エネ性能の追求により、ランニングコストをガス給湯器の約1/5~1/8※1に抑えています。オリジナルエコキュートを活用したトヨタホームのオール電化は、CO2の発生が少なく経済的。
※1:[試算条件]・JRA4050:2007Rの年間給湯効率に基づき、ランニングコストを試算。・給湯負荷:IBEC-Lモード(421L:43℃換算)の湯量で試算。・お住まいの地域により光熱費は異なります。※オリジナルエコキュート以外のエコキュートを使用する場合があります。
-

ラ・ロックⅡ
自動車のドアハンドルの技術を応用した電子鍵。電子キーを携帯していれば、ドアハンドルにタッチするだけで玄関ドアの施解錠が可能です。夜間はもちろん手が塞がっていても肘などで反応します。リモコンでの操作も可能です。
Outline
概要
東川口ウィンザーテラス 16号地 物件概要
-
- 地目
- 宅地
-
- 都市計画
- 市街化区域
-
- 用途地域
- 工業地域
-
- 建ぺい率
- 60%
-
- 容積率
- 200%
-
- 道路幅員
- 団地内6m
-
- 設備
-
-
- 水道
- 市営水道
-
- 排水
- 公共下水
-
- 雨水
- 宅地桝
-
- 電気
- 中国電力
- ラ・ロックⅡ(電子錠)
- 浴室乾燥暖房機
- 熱交換型換気システム
- 太陽光パネル(3.975㎾)
- 全館空調
- エコキュート
- BEV・PHEV専用コンセント
-
- 販売戸数
- 1戸
-
- 販売価格
- 4,498.3万円(税込)
-
- 土地面積
- 170.34m2(51.52坪)
-
- 建物面積
- 1F:43.55m2
2F:44.43m2
-
- 延床面積
- 87.98m2(24.61坪)
-
- 建物完成日
- 令和7年8月末
-
- 建築確認番号
- 第ERI-24042305号(令和6年12月18日付)
-
- 取引態様
- 売主
-
- 情報更新日
- 2025年08月27日※先着順申込につき、ご希望の物件が成約済となる場合がございます。
-
- 広告主
- トヨタホーム岡山株式会社
〒701-0144 岡山県岡山市北区久米161
TEL:086-941-8822
免許番号:国土交通大臣(2)第9718号
- ※表示の徒歩分数は地図上で計測した概算距離を1分80mで算出した所要時間です。